Cảm nhận của khách hàng
Mời bạn tham khảo cảm nhận của các khách hàng đã dùng dịch vụ thiết kế – thi công tại VINHOUSE GREEN

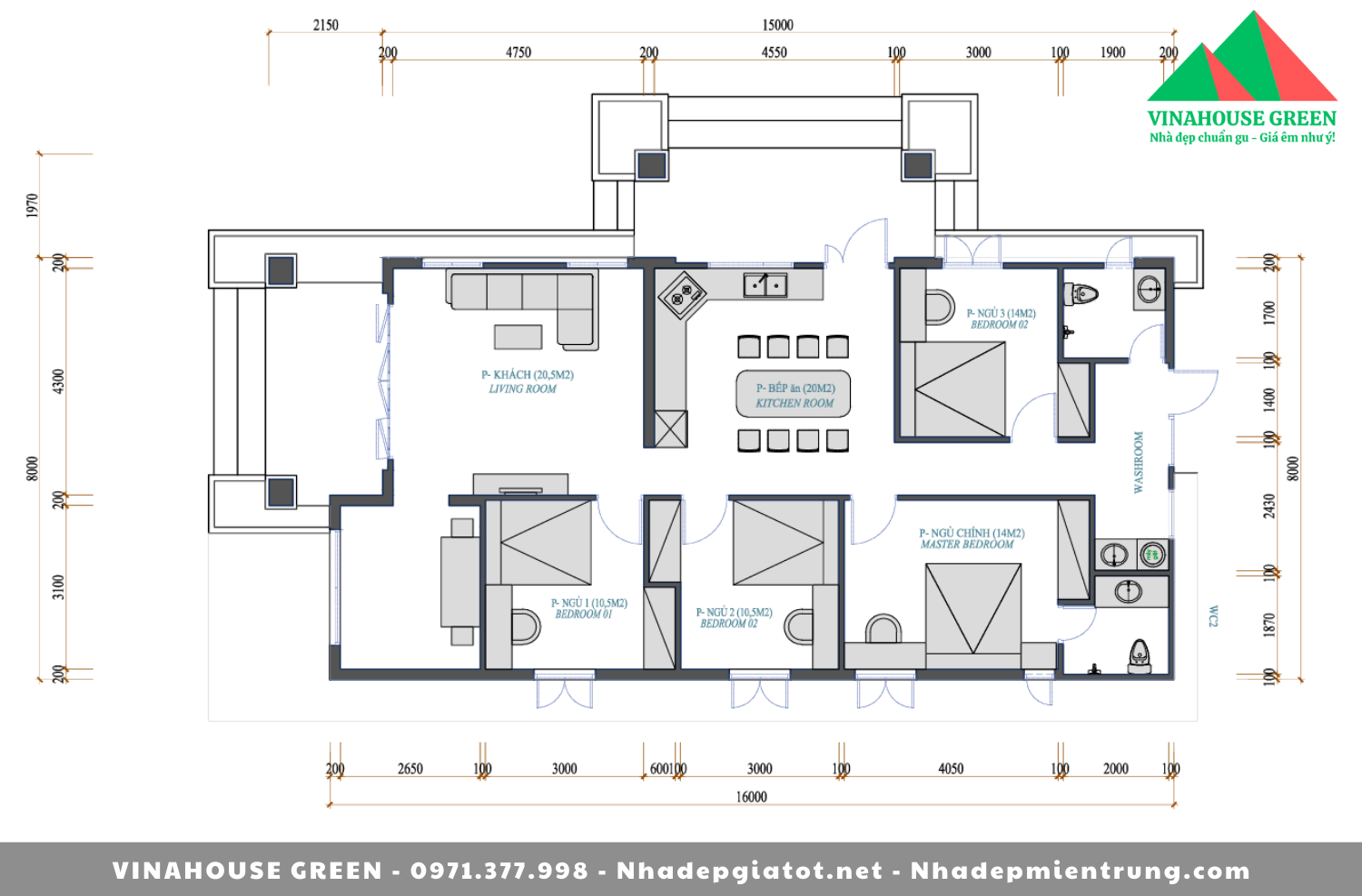
Bạn đang tìm kiếm một mẫu nhà cấp 4 vừa đẹp, vừa tiện nghi nhưng vẫn đảm bảo chi phí xây dựng hợp lý? Hôm nay, chúng tôi xin giới thiệu mẫu nhà cấp 4 với diện tích 8x15m, thiết kế 4 phòng ngủ rộng rãi, phù hợp cho gia đình nhiều thế hệ hoặc những ai cần không gian sống thoải mái.
Với diện tích 120m², mẫu nhà cấp 4 này được thiết kế theo phong cách hiện đại, tối ưu hóa không gian và công năng sử dụng. Dưới đây là một số thông tin chi tiết về công năng của căn nhà:

Mẫu nhà cấp 4 này được thiết kế theo phong cách hiện đại pha chút truyền thống, mang lại cảm giác gần gũi nhưng vẫn sang trọng. Tông màu chủ đạo là trắng – xám, kết hợp với cửa kính lớn giúp tối ưu ánh sáng tự nhiên, tạo không gian thoáng đãng.
Phần mái thái cao ráo, giúp chống nóng tốt và tạo điểm nhấn thẩm mỹ cho căn nhà. Ngoài ra, phần sân trước được thiết kế rộng rãi, có thể để ô tô hoặc làm sân vườn nhỏ, tạo thêm không gian xanh mát.


🔹 Phòng khách: Nằm ngay sau cửa chính, được thiết kế rộng rãi với nội thất hiện đại. Bộ sofa lớn kết hợp với kệ tivi tạo không gian sinh hoạt chung ấm cúng.
🔹 Phòng bếp + phòng ăn: Được thiết kế liên thông, tạo sự thông thoáng và tiết kiệm diện tích. Tủ bếp chữ L giúp tối ưu không gian nấu nướng, mang đến sự tiện nghi cho gia đình.
🔹 4 phòng ngủ: Được bố trí hợp lý, đảm bảo sự riêng tư. Trong đó:
🔹 2 nhà vệ sinh: Được thiết kế hiện đại, sử dụng nội thất cao cấp, đảm bảo tiện nghi cho cả gia đình.
✅ Thiết kế thông minh, tối ưu không gian sống
✅ Chi phí xây dựng hợp lý, phù hợp nhiều gia đình
✅ Phong cách hiện đại, sang trọng nhưng không quá cầu kỳ
✅ Đầy đủ tiện nghi, phù hợp gia đình từ 4-6 người
Chi phí xây dựng mẫu nhà cấp 4 này sẽ phụ thuộc vào nhiều yếu tố như vật liệu xây dựng, vị trí thi công, phong cách nội thất. Tuy nhiên, theo mặt bằng chung, mức chi phí ước tính khoảng:
Mẫu nhà cấp 4 8x15m với 4 phòng ngủ là một lựa chọn lý tưởng cho những ai đang tìm kiếm một không gian sống tiện nghi, đẹp mắt mà không quá tốn kém. Với thiết kế thông minh, tối ưu diện tích và công năng, căn nhà này hứa hẹn sẽ mang đến sự hài lòng tuyệt đối cho gia đình bạn.
👉 Bạn đang có nhu cầu thiết kế & xây dựng nhà cấp 4? Hãy liên hệ với chúng tôi ngay để nhận tư vấn miễn phí!
📞 Hotline: 0971.377.998
🌐 Website: Nhadepgiatot.net
Mời bạn tham khảo cảm nhận của các khách hàng đã dùng dịch vụ thiết kế – thi công tại VINHOUSE GREEN
Một số bài viết liên quan tới thiết kế chúng tôi biên tập dành riêng cho bạn